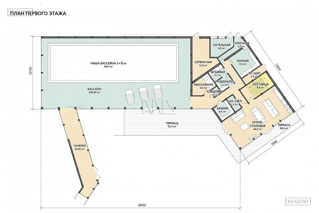
Проект отдельно стоящего SPA комплекса «Котельники» с бассейном, парной и хамамом. Общая площадь комплекса — 566 кв.м. Площадь непосредственно спа-зоны — 244 кв.м.
Комплекс построен по технологии фахверк. В конструкции использован пространственно-силового каркас из клееного бруса с видовыми фермами с заполнением энергосберегающими двухкамерными стеклопакетами на основе алюминиевого профиля.
Прочитать подробнее про современную технологию фахверк можно по ссылке.
Использование энергосберегающего панорамного остекления в комплексе с грамотным монтажом стеклопакетов способствует минимизации эксплуатационных затрат на обслуживание дома, а также формирует максимально комфортные условия внутри помещений за счет нанесения специальной защиты от воздействия прямых солнечных лучей.
SPA комплекс соединен панорамной галереей с основным домом, что позволяет комфортно в любую погоду переходить к бассейну и возвращаться назад под крышей, а не пробегая босиком под дождливым или снежным небом.
Планировкой SPA комплекса предусмотрен бассейн, парная, хамам и просторная зона отдыха. Также организована кухня-столовая с выходом на террасу. На втором этаже расположились две гостевые спальни. Насосное оборудование установлено в цокольном этаже в помещении с отдельным входом.
Особого внимания заслуживает фундамент всего комплекса зданий. Проект фундамента создавался индивидуально для реального участка и под выбранную архитектуру. Это сложное и уникальное инженерное сооружение, которое совместило пять типов конструкций в одном фундаменте.
Напоминаем, что любой проект с нашего сайта, адаптируется под запросы каждой конкретной семьи и индивидуальные особенности вашего участка. Подробнее по ссылке.
|
Коробка дома на фундаменте под кровлей
|
Теплый контур без фасадной отделки
|
Теплый контур с фасадной отделкой
|
|
Коробка дома на фундаменте под кровлей
|
Теплый контур без фасадной отделки
|
Теплый контур с фасадной отделкой
|
|
Фахверк
|
|
Фахверк
|
|
|
Отделочная доска
|
—
|
|
Силикатная штукатурка
|
—
|
|
Силикатная штукатурка / отделочная доска
|
—
|
|
Лицевой кирпич 60 р./шт.
|
—
|
|
Кирпич 60 р./шт. / отделочная доска
|
—
|
|
Кирпич 60 р./шт. / штукатурка
|
—
|
Ключи от вашего дома вы получите через , не позднее
Можно! Об этом мы слышим постоянно, ведь кто-то сам занят производством каких-либо стройматериалов, у кого-то друзья или родственники, а кому-то предложили хорошую скидку.
Но поверьте, 90% подобных случаев заканчивается звонком менеджеру и просьбой: «а может быть все-таки вы?» Ведь никто не справиться с задачей лучше опытного специалиста отдела закупок и логистики. Стоит ли тратить силы и экономить несколько тысяч рублей?
Хотя зачастую не получается даже экономии, поскольку закупочные цены для крупной строительной компании всегда ниже, чем для частных лиц.
Вы успели сравнить цены с конкурентами? Да, мы понимаем, что наше предложение может оказаться дороже, чем предложение наших конкурентов. И возможно наши шансы не слишком велики.
Но, как показывает опыт, подробное изучение комплектации конкурентов и того, что именно входит в заявленную ими цену, приводит к тому, что заказчики в финале своих изысканий удивляются почему же окончательная цена не соответствует заявленной изначально.
Можно! И нужно!
Строительный процесс всегда разбит на несколько этапов. Мы не берем денег вперед за полный комплекс услуг. Наши клиенты оплачивают работу поэтапно после принятия каждого этапа и подписания акта выполненных работ по предыдущему.
Строительство надежного и долговечного дома — это сложный и затратный процесс. Сколько же вы можете сэкономить, приобретая наш продукт, в дальнейшей перспективе?
Для каждого дома по желанию заказчика мы рассчитываем паспорт энергобаланса дома, который позволяет оценить энергоэффективность дома и затраты на его эксплуатацию. За счет применения специальных строительных технологий оплата за совокупный расход электроэнергии в отопительный сезон даже при электрическом котле на площадь 200 кв.м может составлять не более 2000 рублей в месяц.
Мы прекрасно понимаем, что вам предстоят серьезные затраты. Но если вы не видите, как подобные инвестиции могут окупиться, то может быть и не стоит делать этих вложений?
Да, обязательно уведомите местные власти о планах строительства, а потом о его завершении. Сделать это можно: