Санкт-Петербург
Санкт-Петербург
Москва
Новороссийск
Проекты
меню
Заказать звонок
+7 (812) 704 83 09
+7 (495) 877-49-52
+7 (8617) 777 100
+7 (929) 850 02 52
Проекты и цены
Построенные дома
Посёлки
Услуги
О компании
Клиентам
Избранное
Сравнение
Контакты
Проекты и цены
Технология
Каркасные дома
Газобетонные дома
Кирпичные дома
Этажность
Одноэтажные дома
Двухэтажные дома
Дополнительные опции
С мансардой
С гаражом
Все категории
Построенные дома
Готовые объекты
Объекты строятся
Интерьеры
Ландшафты
МАФ
Истории заказчиков
Этапы строительства
Посёлки
Услуги
Индивидуальное проектирование
Адаптация готового проекта с сайта
Формирование генплана участка
Индивидуальный расчётный фундамент УШП PRO
Строительство дома «под ключ»
Строительство фундамента УШП
Дизайн интерьера загородного дома
Проектирование инженерных систем
Внутренняя отделка загородного дома
МАФ — Навесы, гаражи, заборы
Ландшафтный дизайн
Видеонаблюдение на объекте
Помощь при покупке участка
О компании
О нас
Наша команда
Наше производство
Конструкторская группа
Наша география
Сертификаты
Клиентам
Оплата
Строительство домов под ипотеку
Поэтапная оплата строительных работ
Строительство с привлечением материнского капитала
Технологии
Важно знать
Фото
Видео
Избранное
Сравнение
Контакты
Заказать звонок
Санкт-Петербург
+7 (812) 704 83 09
Москва
+7 (495) 877-49-52
Новороссийск
+7 (929) 850 02 52
+7 (8617) 777 100
Фото каркасных скандинавских домов
Проект "Луга"
Кирпич
Газобетон
Каркас
Стоимость строительства
11 146 000 Р
посмотреть проект
Площади, м2
S дома
222,92
S террасы барбекю
18,29
S открытой террасы
23,12
Атрибуты
Спальни
4
Санузлы
3
показать всё
Проект "Белоостров 2"
Кирпич
Газобетон
Каркас
Стоимость строительства
13 015 200 Р
посмотреть проект
Площади, м2
S дома
236,64
S террасы
21,77
S спа-зоны
31,56
Атрибуты
Спальни
3
Санузлы
3
показать всё
Проект "Сосновая аллея"
Кирпич
Газобетон
Каркас
Стоимость строительства
15 430 000 Р
посмотреть проект
Площади, м2
S дома
308,6
S террасы барбекю
65,43
S навеса для авто
53,84
S spa зоны
36
S веранды
20,70
Атрибуты
Спальни
3
Санузлы
3
показать всё
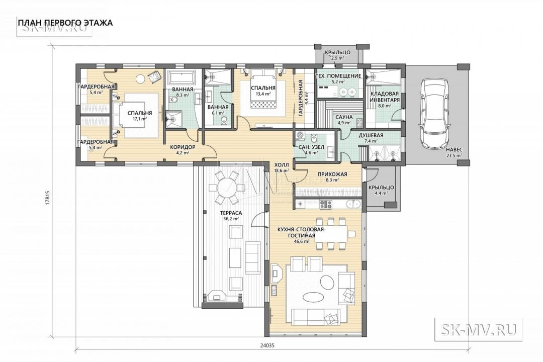
Проект "Сестрорецк"
Кирпич
Газобетон
Каркас
Стоимость строительства
11 949 500 Р
посмотреть проект
Площади, м2
S дома
238,99
S закрытой террасы
25,11
S открытой террасы
30,33
S навеса для авто
43,18
S цокольного этажа**
44,18
Атрибуты
Спальни
3
Санузлы
3
показать всё
Проект "Рощино Клуб"
Газобетон
Каркас
Кирпич
Стоимость строительства
14 854 400 Р
посмотреть проект
Площади, м2
S дома
270,08
S навеса для авто
24,29
S террасы
95,82
S террасы барбекю
11,32
Атрибуты
Спальни
3
Санузлы
2
показать всё
Проект "Пирогово 2"
Каркас
Газобетон
Кирпич
Стоимость строительства
9 351 500 Р
посмотреть проект
Площади, м2
S дома
187,03
S навеса для авто
23,5
S террасы
32,6
Атрибуты
Спальни
2
Санузлы
3
показать всё
Проект "Истра"
Кирпич
Газобетон
Каркас
Стоимость строительства
19 828 000 Р
посмотреть проект
Площади, м2
S дома
396,56
S навеса для авто
54,6
S террасы 1
155,8
S террасы 2
10,6
Атрибуты
Спальни
4
Санузлы
3
показать всё
Проект "Олики"
Каркас
Газобетон
Кирпич
Стоимость строительства
8 980 500 Р
посмотреть проект
Площади, м2
S дома
179,61
S первого этажа
115,9
S второго этажа
59,6
S террасы
13,7
S сауны
9,6
S второго света
53,8
Атрибуты
Спальни
4
Санузлы
3
показать всё
Понравился проект? Запишитесь на консультацию!
Выберите регион
Санкт-Петербург и ЛО
Москва и МО
Новороссийск
Другой регион
Согласен на
обработку персональных данных
Этот сайт защищен reCAPTCHA, и к нему применяются Политика конфиденциальности Google и условия предоставления услуг. (This site is protected by reCAPTCHA and the Google
Privacy Policy
and
Terms of Service
apply.)
Наверх
Какой дом вам нужен?