Разработка генплана участка — это размещение будущего дома на участке относительно других строений, соседних участков, природоохранных зон и т.д. с учетом инсоляции, видового потенциала, перспективного плана развития территории, требований и норм коттеджных поселков, экономической целесообразности, противопожарных и санитарных норм.
Генплан необходимо разрабатывать, чтобы:
Определить точные привязки дома относительно границ участка (красные зоны, нормативы, расположение въезда на участок и т.д.).
Оптимально разместить дом на участке, учитывая особенности ориентации участка по сторонам света.
Расположить на генплане все второстепенные строения (въездная группа, навес, хозблок, детская площадка, баня, летняя кухня и т.д.) с учетом перспективного плана освоения территории и индивидуального сценария жизни вашей семьи, чтобы парковка автомобилей была удобной, зоны рекреации и отдыха приносили радость, правильно расположенная терраса — удовольствие, интересы всех членов семьи были учтены наиболее полно, а потенциал участка был раскрыт по максимуму.
Разработать план организации участка с учетом индивидуальных особенностей участка (размеры и форма; рельеф местности; характеристики грунтов; глубина залегания грунтовых вод; стороны света и инсоляция; направления ветра; видовой потенциал участка).
Оптимизировать стоимость проведения строительных работ, в том числе земельных работ, связанных с осушением участка, усилением пятна застройки, перемещением отработанного грунта на участке для нивелирования перепада высот и формирования подпорных стен, созданием подъездных путей к месту строительства, наличием, шириной и глубиной дренажных канав по границе участка.
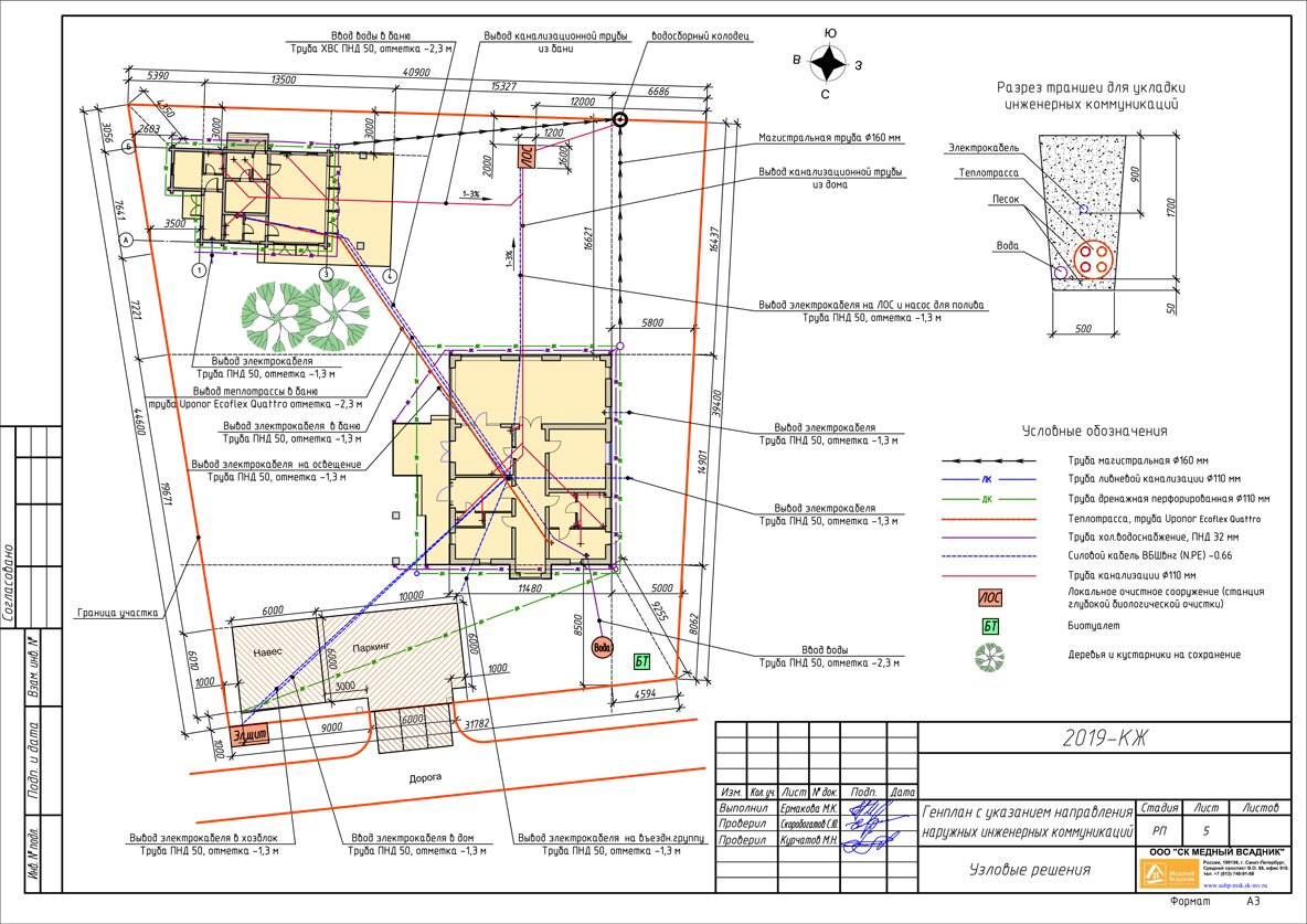
Определить расположение точек подключения дома к наружным коммуникациям (электричество, вода, канализация, колодцы дренажной и ливневой системы, коллектор, септик, насосы, скважина) и оптимальные направления прокладки инженерных сетей.
Что необходимо учитывать при разработке генплана? Об этом подробнее читайте в специальной статье про генплан на нашем сайте.
Пример генплана земельного участка, разработанного СК Медный Всадник.

Что необходимо учитывать при разработке генплана? Об этом подробнее читайте в специальной статье про генплан на нашем сайте.
>>>>> Разработка генерального плана земельного участка производится только в рамках заключенного с нашей компанией договора на проектные работы по адаптации проекта или разработке индивидуального проекта жилого дома — архитектурное решение АР, стадия эскизный проект ЭП. Как самостоятельная услуга без разработки проекта, разработка генплана земельного участка не производится.